Villa on the sea in Sardinia (Arbatax).

  • Cделка
  • Покупка
  • Тип
  • Вилла/коттедж
  • Площадь
  • 140 m2
  • Этажей
  • -
  • Комнат
  • -
Вилла на море в Сардинии (Арбатакс).
Вилла расположена в уникальном и несравненном месте, менее чем в 50 метрах от моря, напротив одного из самых красивых пляжей в регионе с мелким белым песком и кристально чистой водой, она окружена частным садом с восхитительной террасой с видом на море, где она находится Вы можете провести расслабляющие моменты или полюбоваться видом, вдыхая морской бриз.
Вилла со вкусом отделана, находится в отличных условиях обслуживания и оснащена всеми удобствами: система отопления с радиаторами, душ на открытом воздухе, барбекю, терраса с видом на море.
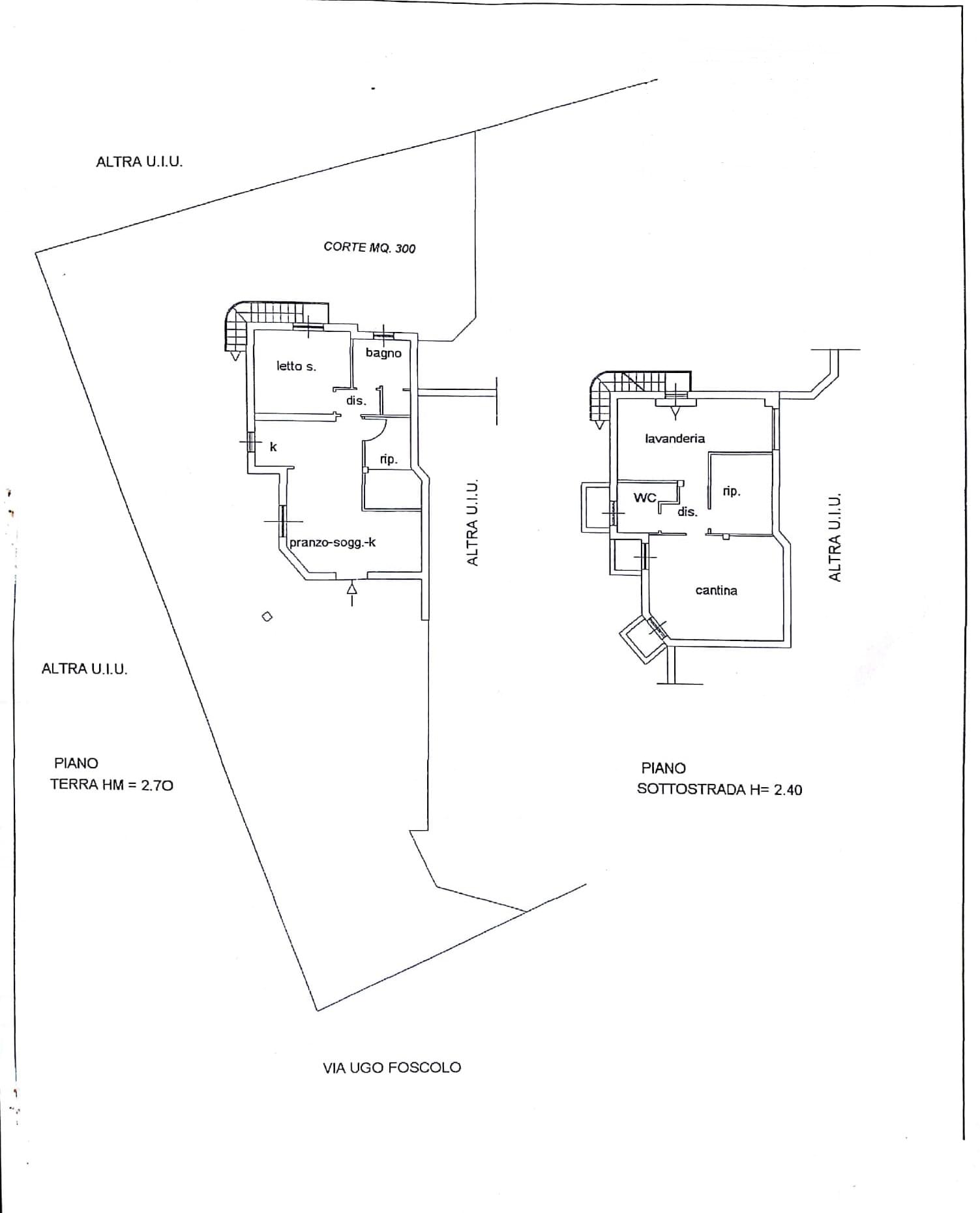
На первом этаже расположены две спальни, ванная комната и гостиная с американской кухней. Это идеальное решение для создания одной комнаты для гостиной с видом на открытую террасу, на которой была построена беседка с деревянными балками. сплошные массы и шторы, решительно шикарные и с сильным эстетическим воздействием.
Цокольный этаж имеет отдельный вход и такое же внутреннее распределение на первом этаже, он был профессионально отделан и обставлен.
В отеле также есть 2 удобных открытых парковочных места.
Класс энергопотребления и индекс энергоэффективности ожидают сертификации
  • Расположение:
Страна:Италия
Регион:Sardegna
Город:Arbatax
Тип недвижимости:Вилла/коттедж
Комиссия:15 000 €
Возможен торг:Да
  • Характеристики
Жилая Площадь (м2):35
Общая Площадь (м2):140

500 000 €

582 449 $
44 645 627 ₽

На карте

Другие объекты данного продавца