Продается коммерческая недвижимость в Пьяченца, Италия

  • Cделка
  • Покупка
  • Тип
  • Коммерческая
  • Площадь
  • 40000 m2
  • Этажей
  • -
  • Комнат
  • 10
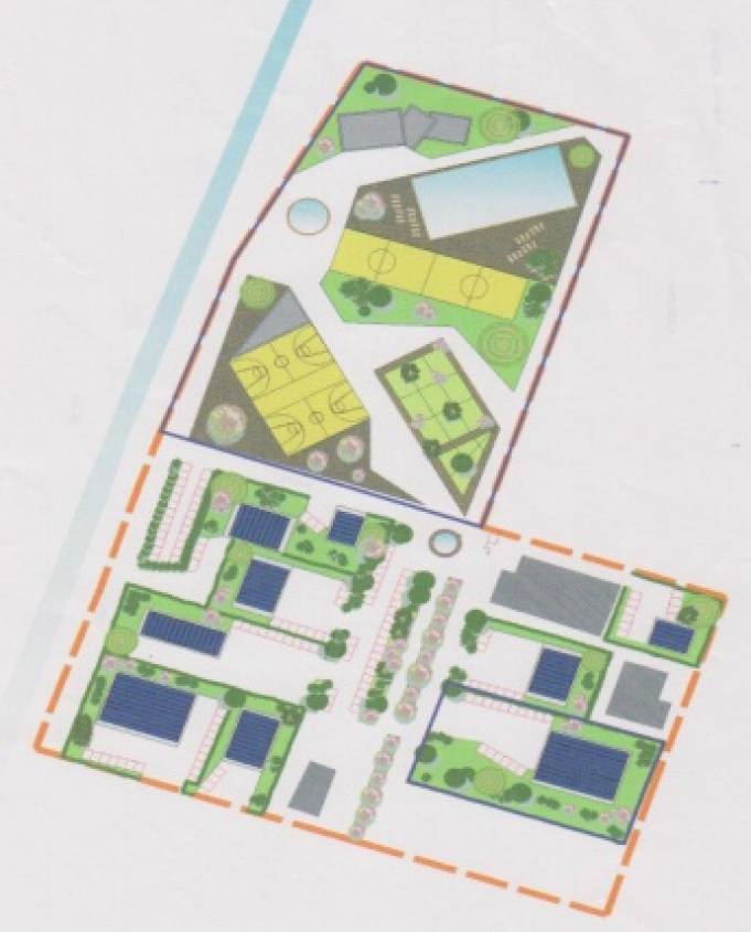
Продается коммерческая недвижимость в Пьяченца, провинция в Италии, в регионе Эмилия-Романья. Недвижимость расположена в Сеттима которая является частью итальянского муниципалитета Госсоленго, в провинции Пьяченца, в Эмилии-Романье. Ведутся строительные работы комплекса коммерческих и индустриальных помещений для продажи или аренды. Недвижимость расположена на большом участке земли 40000m² + 40000m², индекс строительства 60%.  Комплекс имеет выгодное расположение на главной улице промышленной зоны в Settima di Gossolengo PIACENZA, государственная дорога 45 (Bobbio Genova).  Реализацией данного проекта занимаются престижные дизайнеры и застройщики для эффективной эксплуатации производственных зданий, как для крупного логистического центра так и для офисов предприятий различных сфер. В строительстве используются качественные материалы с инновационными технологиями. Для получения большей информации свяжитесь с нами
  • Расположение:
Страна:Италия
Регион:Emilia-Romagna
Город:Piacenza
Тип недвижимости:Коммерческая
  • Характеристики
Комнат:10
Жилая Площадь (м2):40000

999 999 €

1 173 298 $
96 339 976 ₽

На карте

Другие объекты данного продавца