HOUSE WITH LAND - 6 KMS FROM FÁTIMA

  • Cделка
  • Покупка
  • Тип
  • Дом на одного хозяина
  • Площадь
  • 315 m2
  • Этажей
  • -
  • Комнат
  • 4
Lovely countryside contemporary home project, with great areas, privacy and an inviting swining pool suited for the hottest of summer days. Perfectly inserted in its surroundings this home has all the permits and projects from the municipality.

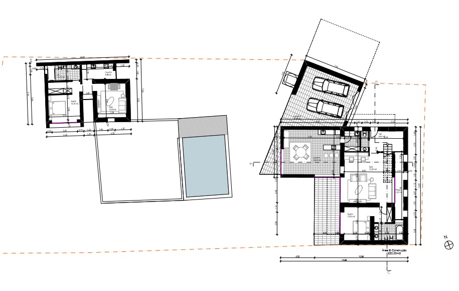
This ready to build four bedroom, four bathroom house, is located in Moita do Martinho, a tipical brownstone village, one step away from Fátima. Only 6km away from the Sanctuary! Great access ways are also within reach, either by A8 or A1 any visit to Lisbon or Oporto is quickly achievable.

The project comes with a fully approved guest house independent from the main home and equipped with all the commodities for privacy for any guests to enjoy their stay.

Main House: 
- Living room 
- Kitchen 
- Bathroom 
- Pantry
- 4 bedrooms, one of them with a fantastic terrace) 
- Two car parking space

Outside: 
- Pool 
- Garden areas
- Guest house 

The project allows for expansion if more room is needed. 

In the heart of Portugal's Região Centro, the home is inserted in a prominence area, enjoying beautiful surroundings and an overwelming view to the hills allowing for perfect, peaceful moments of rest and tranquillity.
  • Расположение:
Страна:Португалия
Регион:Leiria District
Город:Batalha, Portugal
Тип недвижимости:Дом на одного хозяина
Возможен торг:Да
  • Характеристики
Комнат:4
Кол-во кухонь:1
Кол-во туалетов:4
Жилая Площадь (м2):315

85 000 €

99 730 $
8 188 906 ₽

На карте

Другие объекты данного продавца