Вилла с видом на море. Новостройка.

  • Cделка
  • Покупка
  • Тип
  • Дом
  • Площадь
  • 320 m2
  • Этажей
  • -
  • Комнат
  • 5
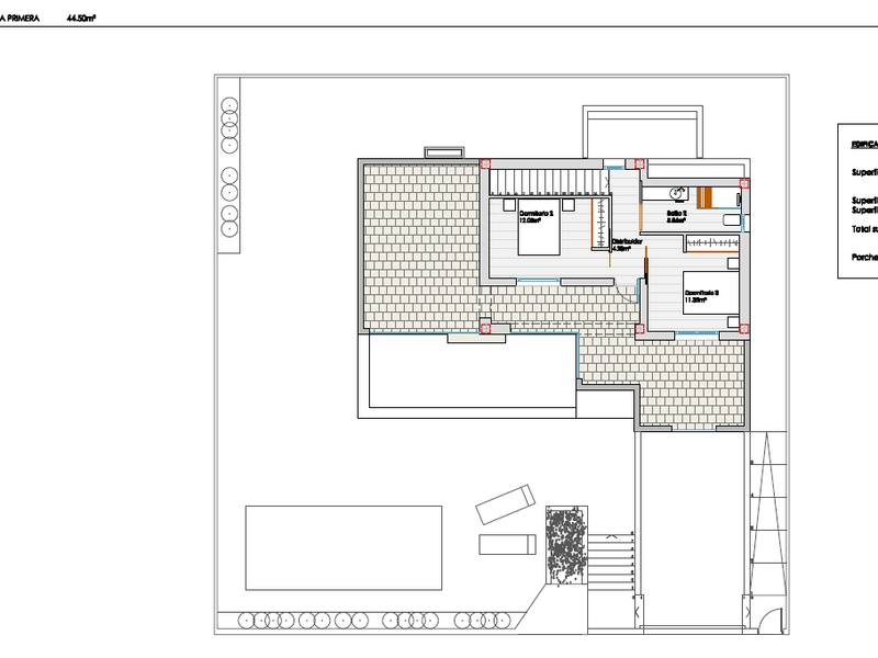
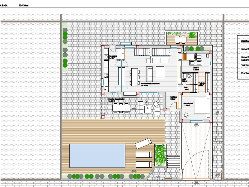
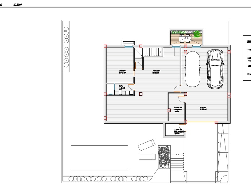
Продается современная отдельно стоящая вилла с видом на море в районе Лос Альтос в Торревьехе. Недвижимость находится на начальной стадии строительства, завершение которого предположено на Февраль 2018-го года. По плану, построенная площадь виллы составляет 320 метров квадратных. Из них 150 метров составляют жилую площадь дома с 3 спальнями, 3 ванными комнатами, гостиной и кухней; оставшиеся 170 метров квадратных составляют площадь полуподвального помещения с винным погребом, еще одной ванной комнатой и гаражом. Дом располагается на земельном участке площадью 400 метров квадратных с частным бассейном. Вилла вручается полностью меблирована и укомплектована бытовой техникой. Строительство производится с использованием последних технологий и только высококачественных материалов. До завершения строительства есть возможность персонализировать отделочные материалы и меблировку. Дом находится в непосредственной близости от супермаркетов, торговых центров, ресторанов, школ, автобусных остановок и т.д.
  • Расположение:
Страна:Испания
Регион:Valencian Community
Город:Torrevieja
Тип недвижимости:Дом
  • Характеристики
Год постройки:2018
Комнат:5
Спальных:3
Жилая Площадь (м2):150
Общая Площадь (м2):320
Земельный участок (м2):400
  • Удобства
Тип Кухни:Встроенная кухня, Открытая кухня
Ванная комната:Душ, Туалет, Окно
Прочие удобства:Кладовая, Прачечная, Цокольный, Винный склад
Оснащение:Сад, Зимний сад, Балкон/Терраса, Кондиционер
Меблировка:Полная
Окна:Звукоизоляционные, Солнцезащитные, Теплостойкие
Дополнительное оборудование:Стиральная машина, Холодильник, Плита, Другое
Вид из окон:На море/океан, В сад

530 000 €

608 000 $
48 780 699 ₽

На карте

Другие объекты данного продавца