3-х комнатная квартира 97.80m2 № A408

  • Cделка
  • Покупка
  • Тип
  • Комната
  • Площадь
  • 100 m2
  • Этажей
  • 9
  • Комнат
  • 3
Инвестиционно-строительная компани «Nova Gradnja Stroy-Invest» представляет Вашему вниманию наш новый проект эксклюзивный мульти-комплекс «PORTO BUDVA» с выходом на улицу Медитеранская и Променад, в самом сердце Будвы!

Инвестируйте в строительство жилья на начальном этапе и получайте доход!
Антикризисное решение!
Отличное местоположение объекта, всего 20 метров до пляжа!
Вид на море!
Отличное предложение для инвестиций!
Рассрочка на 2 года на квартиры и 1 год на коммерческие помещения!
После сдачи в эксплуатацию объекта, цены возрастут на 50%!
Предоставляются БОЛЬШИЕ скидки при покупке более одной квартиры и при различных способах оплаты !

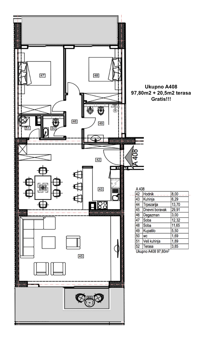
3-х комнатные квартиры  № А408 в эксклюзивном мульти-комплексе «Porto Budva» с торговым центром 8000 м2 и СПА-центром 3500 м2 с широким спектором услуг с открытым и крытым бассейнами!

Квартиры на третем и четвертом  этажах ( высота пятого и шестого этажей ). Высота потолков 3.4 м.

В стоимость квартир включена внутренняя отделка «под ключ» с дизайнерским ремонтом !

Квартира с видом на море, город и крепость Старого города, с двумя спальнями, двумя санузлами и двумя террасами площадью 97.80 м2, которая оформляется по документам и идет в расчет оплаты + 20.50m2 терраса с озеленением в подарок!

Стоимость 342.300e

Квартира состоит из:
Коридор 7.71 м2
Гостинной 29.20 м2
Кухня 6.17 м2
Столовая 12.96 м2
1 спальня 12.32 м2
2 спальня 11.63 м2
Гардеробная 3 м2

Ванна 5.49 м2
Санузел 4.20 м2
1 терраса  3.85 м2
2 терраса 2.92 м2

Внутренняя отделка/дизайнерский ремонт!

Комнаты:
Подвесные потолки
Освещение
Обои
Обогрев полов
Дубовый паркет  1-ого класса

Ванная:
Сантехника:  Villeroy&Boch ( душевая кабина или ванна )
Мрамор
Гранит фирми «Травертини»
Мозаичная плитка из венецианского стекла фирми «Валентино»
Обогрев полов

Фасад: гранит бежевого цвета фирмы  «Травертини» , трёхкамерные стеклопакеты.

	Управляющая компания предоставляет услугу для сдачи Вашей квартиры в аренду в течение года!
	Обслуживание дома!
	Видеонаблюдение!
	Цена квартир включает стоимость дизайнерской отделки премиум-класса!
	Дополнительное оснащение по Вашему желанию!
	Возможность перепланировки квартиры на стадии строительства !
	Все материалы для квартир Вы сможете непосредственно выбрать у нас!
	Полное сопровождение сделки!
	Для клиентов предоставляются бесплатные юридические услуги!
      При приобретении недвижимости предоставляется вид на жительства в солнечной Черногории на год!

Срок сдачи коммерческого помещения-конец  2017 года.
Срок сдачи  - конец 2018 года.

С уважениeм/Best regards/Sa poštovanjem
Ana Golubović - Sales Director
+38268132 995
ОФИС ПРОДАЖ/SALES OFFICE
ОФИС ПРОДАЖ 

Медитеранская улица 20, возле Главной почты, Будва-центр
Тел/Viber +382 68 132 995

Инвестиционно - строительная компания NOVA GRADNJA - ALART CENTAR - BUDVA CG
8 800 200 1 333 бесплатный звонок для Росси

www.chernogoriyastroyinvest.com
www.portobudva.me
  • Расположение:
Страна:Черногория
Регион:Budva Municipality
Город:Budva
Тип недвижимости:Комната
  • Характеристики
Год постройки:2018
Комнат:3
Спальных:2
Кол-во туалетов:2
Жилая Площадь (м2):100
Земельный участок (м2):6000
  • Удобства
Покрытие пола:Плитка, Линолеум, Паркет, Ковровое, Дерево, Мрамор
Тип Кухни:Открытая кухня
Ванная комната:Душ
Прочие удобства:Кладовая, Гардероб, Гостевой туалет
Охрана/Безопасность:Сигнализация, CCTV, Немедленный вызов помощи, Детекторы дыма
Оснащение:Лифт, Зимний сад, Балкон/Терраса, Кондиционер, Сауна
Отопление:Электрическое
Меблировка:Отсутствует
Оконные рамы:Алюминивые
Окна:Звукоизоляционные, Солнцезащитные, Теплостойкие, Бронированные
Вид из окон:На море/океан, На старый город

342 300 €

393 765 $
31 329 251 ₽

На карте

Другие объекты данного продавца