3-х комнатная квартира 97.75m2 № А806

  • Cделка
  • Покупка
  • Тип
  • Квартира
  • Площадь
  • 98 m2
  • Этажей
  • 9
  • Комнат
  • 3
Инвестиционно-строительная компани «Nova Gradnja Stroy-Invest» представляет Вашему вниманию наш новый проект эксклюзивный мульти-комплекс «PORTO BUDVA» с выходом на улицу Медитеранская и Променад, в самом сердце Будвы!
Инвестируйте в строительство жилья на начальном этапе и получайте доход!
Антикризисное решение!
Отличное местоположение объекта, всего 20 метров до пляжа!
Вид на море!
Отличное предложение для инвестиций!
Рассрочка на 2 года на квартиры и 1 год на коммерческие помещения!
После сдачи в эксплуатацию объекта, цены возрастут на 50%!
Предоставляются БОЛЬШИЕ скидки при покупке более одной квартиры и при различных способах оплаты !
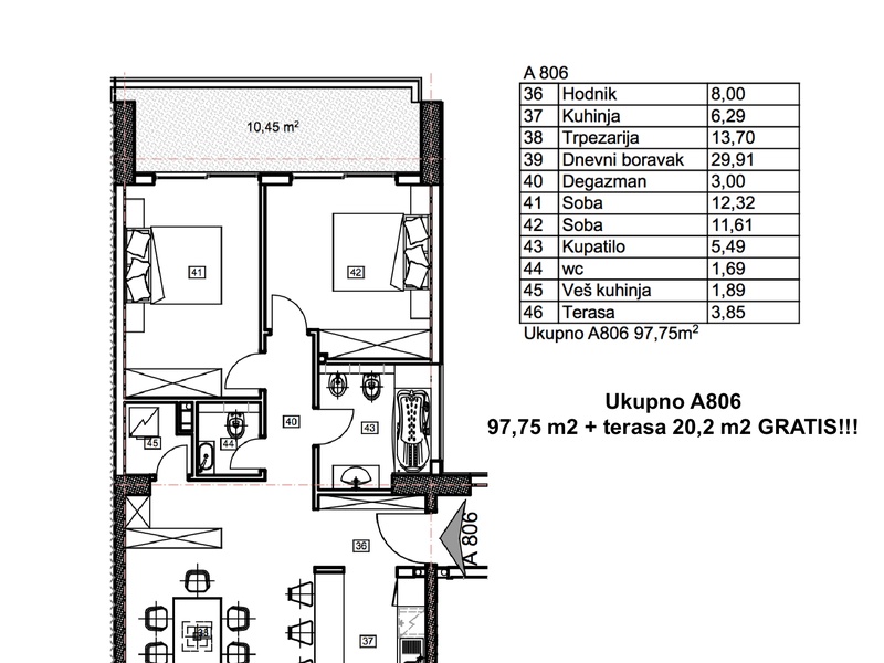
3-х комнатная квартира № А806 в эксклюзивном мульти-комплексе «Porto Budva» с торговым центром 8000 м2 и СПА-центром 3500 м2 с широким спектором услуг с открытым и крытым бассейнами!
Квартира на восьмом этаже ( высота десятого этажа ).
В стоимость квартир включена внутренняя отделка « под ключ » с дизайнерским ремонтом !
Квартира с видом на море и крепость Старого города с одной спальней площадью 97.75м2, которая оформляется по документам и идет в расчет оплаты +  20m2 терраса с озеленением в подарок!

Стоимость 440.100е


Квартира состоит из:
Гостинной совмещённой с кухней 
Спальня 
Спальня 
Гардеробная 
Совмещённый санузел 
Терраса 
Внутренняя отделка/дизайнерский ремонт!
Комнаты:
Подвесные потолки
Освещение
Обои
Обогрев полов
Дубовый паркет  1-ого класса
Ванная:
Сантехника:  Villeroy&Boch ( душевая кабина или ванна )
Мрамор
Гранит фирми «Травертини»
Мозаичная плитка из венецианского стекла фирми «Валентино»
Обогрев полов
Фасад: гранит бежевого цвета фирмы  «Травертини» , трёхкамерные стеклопакеты.
  Управляющая компания предоставляет услугу для сдачи Вашей квартиры в аренду в течение года!
  Обслуживание дома!
  Видеонаблюдение!
  Цена квартир включает стоимость дизайнерской отделки премиум-класса!
  Дополнительное оснащение по Вашему желанию!
  Возможность перепланировки квартиры на стадии строительства !
  Все материалы для квартир Вы сможете непосредственно выбрать у нас!
  Полное сопровождение сделки!
  Для клиентов предоставляются бесплатные юридические услуги!
  При приобретении недвижимости предоставляется вид на жительства в солнечной Черногории на год!Спальня 

Срок сдачи коммерческого помещения-конец  2017 года.
Срок сдачи  - конец 2018 года

С уважениeм/Best regards/Sa poštovanjem
Ana Golubović - Sales Director
+38268132 995
ОФИС ПРОДАЖ/SALES OFFICE
ОФИС ПРОДАЖ 

Медитеранская улица 20, возле Главной почты, Будва-центр
Тел/Viber +382 68 132 995

Инвестиционно - строительная компания NOVA GRADNJA - ALART CENTAR - BUDVA CG
8 800 200 1 333 бесплатный звонок для Росси

www.chernogoriyastroyinvest.com
www.portobudva.me
  • Расположение:
Страна:Черногория
Регион:Budva Municipality
Город:Budva
Тип недвижимости:Квартира
  • Характеристики
Комнат:3
Спальных:2
Кол-во кухонь:1
Кол-во туалетов:2
Жилая Площадь (м2):98
  • Удобства
Покрытие пола:Плитка, Ламинат, Линолеум, Паркет, Ковровое, Дерево, Мрамор, Другое
Тип Кухни:Открытая кухня
Прочие удобства:Кладовая, Гардероб, Гостевой туалет
Охрана/Безопасность:Сигнализация, CCTV, Немедленный вызов помощи, Охрана, Детекторы дыма, Другое
Оснащение:Лифт, Балкон/Терраса, Кондиционер, Сауна
Меблировка:Отсутствует
Окна:Звукоизоляционные, Солнцезащитные, Теплостойкие, Бронированные
Вид из окон:На море/океан, На старый город

440 100 €

505 967 $
41 176 691 ₽

На карте

Другие объекты данного продавца