Таунхаус в городе Сантьяго де Рибера 155 000 Евро

  • Cделка
  • Покупка
  • Тип
  • Дом
  • Площадь
  • 154 m2
  • Этажей
  • -
  • Комнат
  • 4
Таунхаус в городе Сантьяго де Рибера, Коста Бланка – юг
Новый жилой комплекс, строительство завершено
На территории комплекса бассейн и зеленые зоны
500 м до пляжа
Ориентация юго-восточная
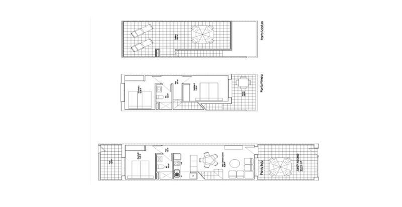
Площадь 154 м2
Спальни 3
Ванные 2
Салон 
Полностью оборудованная кухня
Терраса
Патио 15 м2
Терраса 53 м2 
Продается без мебели
CEE класса D
Торговый центр 2 км
Госпиталь 10 км
Теннисный клуб 2 км
Аэропорт 15 км
Международный колледж 5 км
Удобное транспортное сообщение по национальной дороге N-332 или скоростной трассе AP-7
Цена 155 000 Евро
  • Расположение:
Страна:Испания
Регион:Valencian Community
Город:San Miguel de Salinas
Тип недвижимости:Дом
  • Характеристики
Комнат:4
Жилая Площадь (м2):154

155 000 €

178 419 $
14 654 191 ₽

На карте

Другие объекты данного продавца