Дом в Праге 5, 6 комнат, 251 м2

  • Cделка
  • Покупка
  • Тип
  • Дом на одного хозяина
  • Площадь
  • 250 m2
  • Этажей
  • -
  • Комнат
  • 6
www.abrupt.ru      Первоклассный низкоэнергетический частиный дом с террасой на крыше и видом на Пражский Град является частью возникающего камерного проекта Truhlárna, который чутко «посажен» в очаровательном районе старого Бржевнова. Дом сочетает в себе вневременной дизайн, максимальный комфорт и архитектуру, которая респектует уникальный гений места. Производящий исторический вид, уличный фасад свободно «переплетается» с современно резанными, стеклянными поверхностями на южной стороне, которая открывается в уединенный сад и создает уникальную архитектурную концепцию. Все требования к самому высокому жилому сегменту удовлетворят, например, щедро спалнированные террасы на крыше с восхитительным видом на панораму Градчан, лифты соединяющие все этажи или же затейливо разработанный, подземный гараж. Планируемое завершение проекта август 2017 г.
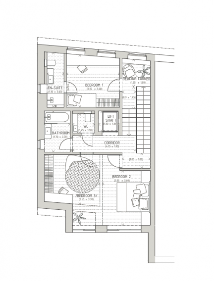
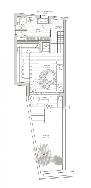
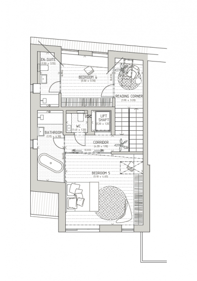
Дом предлагает один подземный и три надземных этажа. На цокольном этаже будет расположена оздоровительная зона с подготовкой к размещению сауны, ванной комнаты и отдельного туалета, техническое помещение/прачечная и склад. Из коридора с лестницей, ведущей на верхние этажи, также будет доступен и общий подземный гараж, в котором будет для каждого дома зарезервировано два парковочных места. Доминантой первого этажа будет ориентированная на южную сторону гостиная с кухней и большого формата окнами, проходными на террасу, которая свободно переходит в сад, созданный студией ландшафтной архитектуры Flera. Далее на первом этаже будут расположены прихожая, отдельный туалет и кладовая. Второй этаж будет состоять из двух спален, одной примыкающей и одной общей ванных комнат, отдельного туалета и уголка для чтения на галерее. Такая же планировка будет и на третьем этаже, который будет иметь выход на террасу на крыше.
На продажу дом будет предлагаться в состоянии white walls, т.е. до завершения окончательных поверхностей (укладки полов, плитки, сантехники и т.д.), причем составной частью покупной цены является комплектный проект дизайна интерьера от известной лондонской студии Jestico + Whiles. Убедиться и увидеть исключительное качество и умение этого ведущего архитектурного бюро Вы можете в последнем доме, который будет завершен по высокому стандарту, с использованием передовых технологий и материалов.
Живописный район с историческим названием Тейнка сохранила небольшое, но почти нетронутое, историческое ядро, как раз сосредоточенное вокруг места где возникает проект. Атмосфера романтических улочек и зеленых закоулков дополняют прекрасные виды, непосредственная близость парка Ладронка или же замкового комплекса. Владельцы домов получат выгоду от широкого выбора услуг и богатых возможностей для релаксации и активного отдыха, а также отличного доступа до центра города и до аэропорта.
Интерьер 250,9 м2, сад 33,4 м2.
  • Расположение:
Страна:Чехия
Регион:Prague
Город:Prague
Тип недвижимости:Дом на одного хозяина
  • Характеристики
Комнат:6
Жилая Площадь (м2):250

1 215 000 €

1 415 350 $
108 488 873 ₽

На карте

Другие объекты данного продавца