3-КОМНАТНАЯ КВАРТИРА В САУЛКРАСТЫ, НОВЫЙ ПРОЕКТ «LIEPAS NAMS»

  • Cделка
  • Покупка
  • Тип
  • Квартира
  • Площадь
  • 104 m2
  • Этажей
  • 5
  • Комнат
  • 3
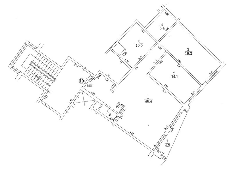
Продает трехкомнатную квартиру с общей площадью 103.9 кв.м. Kвартирa находится на втором этаже дома нового проекта Liepas Nams. Жилая площадь составляет 99 кв. м, наружная терраса занимает 4.9 кв.м. Liepas Nams находится на расстоянии 30 минут езды от Риги и в самом центре Саулкрасты.
В цену включена одна подземная автостоянка.
В квартире выполнена качественная внутренняя отделка. Современная планировка помещений с просторной жилой комнатой, объединенной с кухонной зоной (имеется встроенная кухонная мебель с бытовой техники). 2 спальни, гардеробная, просторная ванная комната с сантехникой и есть второй отдельный туалет.
Инженерные коммуникации: городской водопровод и канализация, электроснабжение, газовое отопление и местное — локальное центральное отопление (котел отопления на сжиженном газе), к квартире подведен оптический Интернет, проложен кабель для подключения телевидения, установлен домофон.
Четырехэтажное здание с надстройкой на крыше и подземной/надземной автостоянкой. В просторной зеленой зоне на прилегающей территории обустроены огороженная детская площадка и сад. Дом расположен в излучине реки Петерупе, которая отделяет прилегающую территорию от дороги и окружающей территории. Море на расстоянии 400 м (по пешеходному мостику через Петерупе). Объект окружен частными домами.
  • Расположение:
Страна:Латвия
Регион:Saulkrastu pilsēta
Город:Saulkrasti
Тип недвижимости:Квартира
  • Характеристики
Год постройки:2008
Комнат:3
Спальных:2
Жилая Площадь (м2):99
Общая Площадь (м2):104
  • Удобства
Ванная комната:Джакузи
Оснащение:Лифт, Балкон/Терраса
Отопление:Газовое, Центральное
Меблировка:Отсутствует

195 000 €

227 575 $
18 871 826 ₽

На карте

Другие объекты данного продавца