Квартира в уютном жилом комплексе рядом с Женевой. Вид на Альпы.

  • Cделка
  • Покупка
  • Тип
  • Квартира
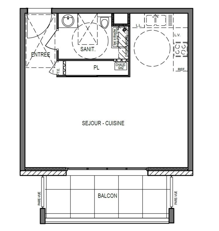
  • Площадь
  • 42 m2
  • Этажей
  • 3
  • Комнат
  • 1
Современная квартира с террасой в ЖК Парк Мон Блан во Франции (Шеври) в 20 минутах от Швейцарии,  это превосходная возможность жить в спокойном и уютном месте, при этом оставаясь в пятиминутной доступности от центра города и всей основной инфраструктуры.
Месторасположение
Два шага от центра города. Рядом школа, коммерческий центр Val Thoiry, магазины, кабинеты врача, банки, страховые компании, авто школа, химчистка,  рестораны, поле для гольфа.
Недалеко озеро Léman и водные развлечения. Лыжная станция (Альпы и Горная цепь Юра)
В близи от автобусной  и трамвайной остановки. Трамвай идет до Женевы.
Автодорога в 15 минутах. Аэропорт и вокзал в 15 минутах.

Комплектация дома:
Электрические ролеты, крупная наполная плитка, паркет клееный дуб,  широкая терраса, участок около дома и крыши озеленены.
  • Расположение:
Страна:Франция
Регион:Auvergne-Rhône-Alpes
Город:Chevry
Тип недвижимости:Квартира
  • Характеристики
Комнат:1
Жилая Площадь (м2):42
  • Удобства
Покрытие пола:Плитка, Паркет
Тип Кухни:Открытая кухня
Ванная комната:Туалет, Душ
Прочие удобства:Гардероб
Охрана/Безопасность:Детекторы дыма
Оснащение:Сад, Балкон/Терраса
Отопление:Электрическое
Меблировка:Отсутствует
Оконные рамы:Алюминивые
Окна:Звукоизоляционные
Вид из окон:На горы, В сад

198 000 €

232 142 $
19 061 247 ₽

На карте

Другие объекты данного продавца